


2 Bedroom House in Die Rand
PROVIDING AMPLE ACCOMMODATION FOR A LARGE FAMILY
EXCLUSIVE SOLEMANDATE - PROVIDING AMPLE ACCOMMODATION FOR A LARGE FAMILY
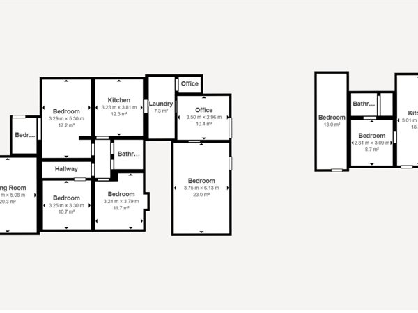
This expansive property at Prinsesstraat 7 offers a unique living experience . The home boasts an impressive 3 bedrooms, and a one bedroom flatlet, providing ample accommodation for a large family or potential rental opportunities. The primary bedroom, offers a spacious retreat.
The property features 2 bathrooms, ensuring convenience for all occupants. Two fully-equipped kitchens one at the flatlet and one at the house, cater to diverse cooking needs, while a dedicated laundry room adds to the home''s functionality. The presence of three living areas which can easily be converted to office spaces, makes this property ideal for those working from home.
The living areas are well-distributed, with a main living room for gatherings and two hallways facilitating easy movement throughout the house. The property''s layout, as seen in the floor plan image, shows a thoughtful arrangement of rooms, maximizing the use of available space.
Exterior images reveal a garden area with trees, providing a touch of nature and outdoor space. The interior showcases a mix of modern and traditional elements, with tiled floors in some areas and carpeted spaces in others. The bathrooms appear to be fully tiled, with one featuring a bathtub.
While some areas may benefit from updating, this property offers immense potential for personalization and improvement, making it an intriguing option for those seeking a spacious, versatile living space.
With the attached 3D tour, you can walk through the entire house and view each room from top to bottom. Simply tap on the spots on the floor with your finger and move through the house and you can even do some measurements of the rooms.
Property details
- Listing number T5190369
- Property type House
- Listing date 14 Aug 2025
- Land size 978 m²
- Floor size 235 m²
- Rates and taxes R 1 418
Property features
- Bedrooms 2
- Bathrooms 2
- Lounges 1
- Dining areas 1
- Open parking 3
- Covered parking 2
- Storeys 1
- Flatlets
- Pet friendly
- Built in cupboards
- Entrance hall
- Kitchen
- Garden
- Scullery
- Pantry